Domov Tiny House Wellness premium O nás Kontakt
SK | DE
Wellness premium

Elite

Luxusná wellness zóna

Špičková sauna s vnútornou sprchou a krytou relaxačnou terasou. Celoročná wellness zóna s LED osvetlením.

Moderná záhradná sauna navrhnutá ako kompletná, celoročná wellness zóna s vnútornou sprchou a zastrešenou relaxačnou zónou. Minimalistická silueta, jemné LED osvetlenie a veľké zasklenia dodávajú celku elegantný, architektonický charakter.

ELITE je naše najpokročilejšie riešenie v ponuke sáun, spájajúce funkciu klasickej sauny s plným SPA zázemím. Vnútorná sprcha umožňuje ochladenie sa priamo po relácii a zastrešená relaxačná zóna umožňuje oddych za každého počasia.

Voliteľne možno saunu vybaviť záhradnou vaňou, jacuzzi alebo vaňou na morské kúpanie, čím vznikne kompletný súkromný wellness komplex.

Technické parametre

Extras Vnútorná sprcha + krytá terasa
Osvetlenie Panoramatické presklenie + LED
Využitie Celoročná wellness zóna

Čo je v cene

  • Falcovaný plech
  • Fasáda škandinávsky smrek 2 cm
  • Možnosti: smrekovec, termoborovica, kompozit
  • Celoročná konštrukcia
  • Panoramatické zasklenie
  • Presklené dvere
  • Vysokokvalitné kalené sklo
  • Maximálne presvetlenie
  • Smreková doska 2 cm (štandard)
  • Falcovaný plech
  • Prémiové možnosti: smrekovec, termoborovica
  • Moderný kompozit
  • Interiér zo škandinávského smreku
  • Lavičky z dreva Abachi
  • Možnosti: termoborovica, osika
  • Elektrický alebo na drevo sporák

Fotogaléria

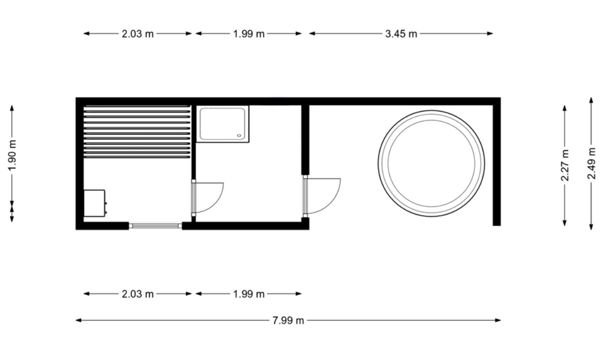
Pôdorysy

Technické výkresy a dispozície

Elite — pôdorys 1

Mám záujem

Pošlite nám dopyt a ozveme sa do 24 hodín.

Nezáväzne. Odpovieme do 24 hodín.

Ako to funguje

Ako prebieha spolupráca

1

Vyberiete si model

2

Konzultácia a úpravy podľa vašich predstáv

3

Pripravíme cenovú ponuku

4

Výroba — môžete nás kedykoľvek navštíviť a skontrolovať priebeh

5

Doprava priamo k vám

6

Osadenie na mieste

7

Odovzdanie a servis

Záujem o niektorý model?

Napíšte nám. Poradíme bezplatne.

Radi zodpovieme všetky vaše otázky a pripravíme nezáväznú cenovú ponuku.

Kontaktovať nás