Domov Tiny House Wellness premium O nás Kontakt
SK | DE
Katalóg / Tiny House / Linear
Tiny House

Linear

Mobilný tiny house pre celú rodinu

17–18 m²
Plocha
až 6 osôb
Kapacita

Väčší mobilný dom s dvoma loftovými spálňami a kuchyňou s umývačkou. Ideálny pre rodiny alebo glamping.

Priestranný celoročný mobilný tiny house s dvoma loftovými spálňami, plným kuchynským vybavením a klimatizáciou WiFi.

LINEAR je náš najväčší model mobilných tiny houses navrhnutý pre tých, ktorí si cenia priestor a funkčnosť. Vďaka dvom loftovým spálňam s plochou 7 m² každá môže domček pohodlne ubytovať až 6 osôb — ideálne riešenie pre väčšie rodiny aj turistický prenájom.

Priestrannú obývačku s plne vybaveným kuchynským kútom dopĺňajú dve loftové spálne, ktoré zaručujú súkromie a pohodlie.

Plná kúpeľňa s moderným sprchovacím kútom FIBO a toaletou GEBERIT zaručuje komfortné používanie.

Podlahové vykurovanie WiFi na celom prízemí a klimatizácia 2,7 kW s funkciou vykurovania, ovládaná telefónom, zabezpečujú celoročný komfort.

Interiérové steny z dosky smrekového dreva 1,2 cm vytvárajú útulné, prírodné prostredie. Fasáda zo smrekového dreva v kombinácii s falcovaným plechom v matnej čiernej farbe dodáva domčeku elegantný, moderný vzhľad.

LINEAR je ideálne riešenie pre tých, ktorí hľadajú mobilný dom a pritom ponúkajúci priestor a komfort porovnateľný s tradičným bytom.

Technické parametre

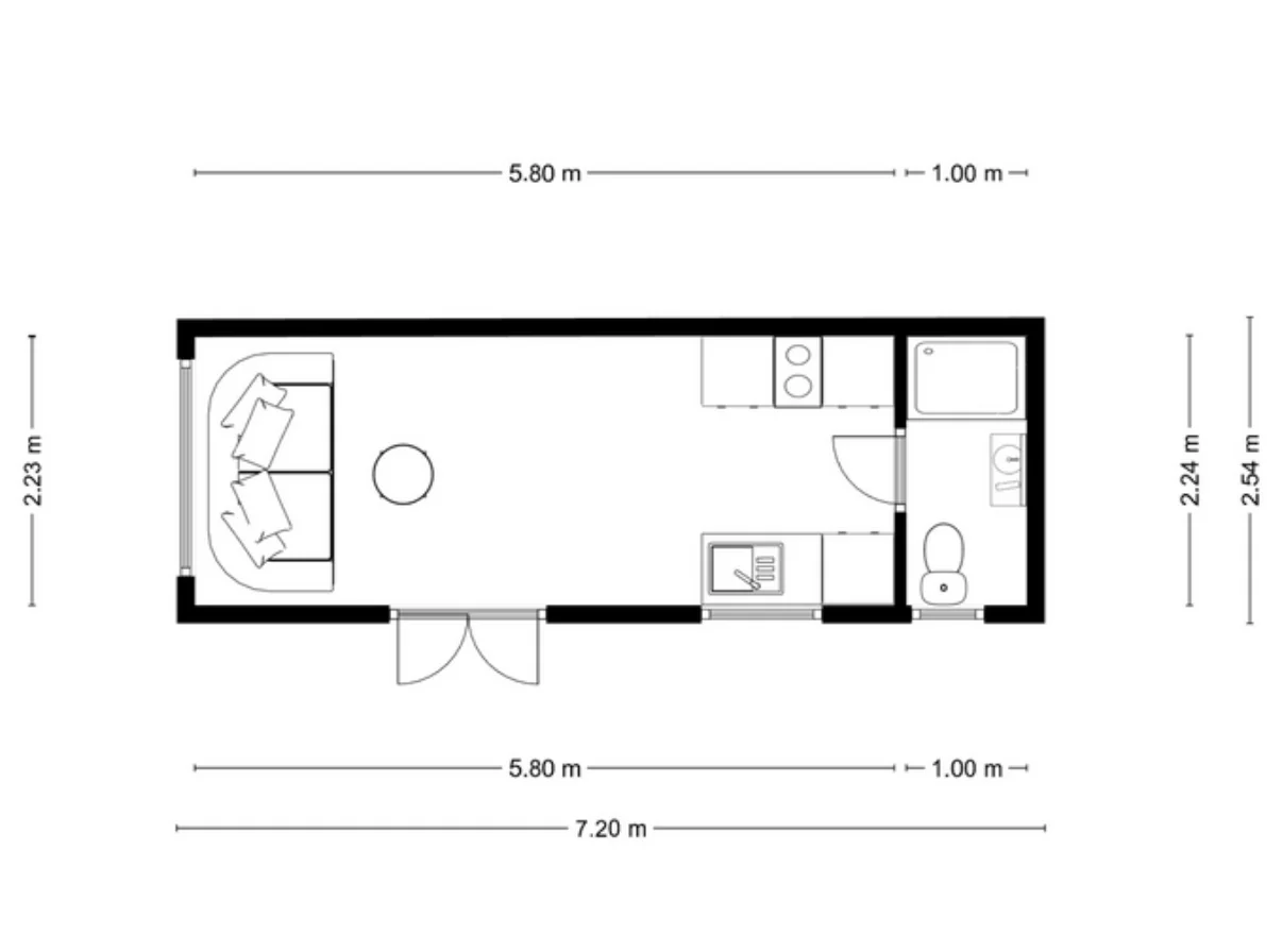
Rozmery 2,55 × 7,20 × 4,00 m
Plocha 17–18 m² + 14 m² loft
Kapacita až 6 osôb
Konštrukcia Drevo C24
Izolácia 10 cm minerálna vata + PIR
Vykurovanie WiFi podlahové kúrenie + klíma 2,7 kW
Kuchyňa Umývačka, indukcia, chladnička

Dom sa vyrába najčastejšie na prívesnom vozíku určenom priamo na mobilné domy. Na žiadosť klienta, ktorý nemá záujem dom presúvať, je možné vyrobiť ho na železnej konštrukcii a premiestniť žeriavom — táto varianta je o niečo lacnejšia.

V našom katalógu nájdete výber našich modelov, no po dohode s klientom vieme naceniť a zrealizovať aj individuálne riešenie podľa projektu, nákresu alebo návrhu pripraveného z našej strany — či už na vozíku, alebo na oceľovej konštrukcii.

Čo je v cene

  • Nábytok na mieru
  • Chladnička s mrazničkou
  • Rúra
  • Dvojplatničková indukčná varná doska
  • Kuchynský odsávač
  • Jednokomorový drez
  • LED osvetlenie
  • Elektrický ohrievač vody
  • Sprchový kút 70 × 100 cm FIBO
  • WC GEBERIT
  • Umývadlo so skrinkou
  • LED zrkadlo
  • Mechanická ventilácia
  • Vodoodolné panely
  • LED osvetlenie
  • Drevená konštrukcia C24
  • Fasáda: smreková doska 2 cm
  • Izolácia: minerálna vata 10 cm + dosky PIR
  • Okná: PVC dvojsklo, čierna matná
  • Podlahové vykurovanie WiFi
  • Klimatizácia 2,7 kW s funkciou vykurovania
  • Vodovodná inštalácia: PEX
  • Elektrická inštalácia: 230 V
  • Kanalizačná inštalácia: 110/50

Fotogaléria

Pôdorysy

Technické výkresy a dispozície

Prízemie: 18 m²
Spací loft: 14 m²

Mám záujem

Pošlite nám dopyt a ozveme sa do 24 hodín.

Nezáväzne. Odpovieme do 24 hodín.

Ako to funguje

Ako prebieha spolupráca

1

Vyberiete si model

2

Konzultácia a úpravy podľa vašich predstáv

3

Pripravíme cenovú ponuku

4

Výroba — môžete nás kedykoľvek navštíviť a skontrolovať priebeh

5

Doprava priamo k vám

6

Osadenie na mieste

7

Odovzdanie a servis

Záujem o niektorý model?

Napíšte nám. Poradíme bezplatne.

Radi zodpovieme všetky vaše otázky a pripravíme nezáväznú cenovú ponuku.

Kontaktovať nás